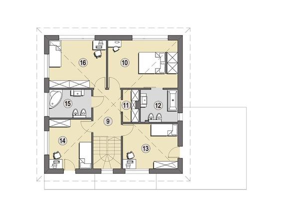
Opis:Projekt domu larnaka b, to dom w stylu wilii miejskiej. Przeznaczony dla 4-5 osobowej rodziny. Elewacja domu to nowoczesne detale, takie jak podcień w strefie wejściowej wykonany ze szkła, boniowanie elewacji w części parterowej domu, które można zastąpić piaskowcem.
na parterze domu zaprojektowano dużą kuchnie z „wyspą” otwartą na salon z kominkiem. Kuchnia i salon mają wyjścia bezpośrednio na przestronny taras. Dodatkowe pomieszczenia na parterze domu to pokój gościnny (może pełnić funkcję gabinetu), w.c. Oraz pomieszczenie gospodarcze poprzez które dostajemy się do dwustanowiskowego garażu. Na piętrze domu przewidziano: osobną strefę dla gospodarzy (składającą się z sypialni i łazienki), trzy sypialnie, łazienkę i garderobę.
Rejestracja i uczestnictwo w serwisie budnet.pl są dobrowolne i bezpłatne.
Użytkownik chcący w pełni korzystać z zasobów portalu budnet.pl zobowiązany jest do dokonania procesu rejestracji i podania prawdziwych danych osobowych. Po wypełnieniu formularza, na adres e-mail użytkownika zostaje wysyłany link aktywacyjny zatwierdzający rejestrację. W momencie rejestracji użytkownik zawiera z portalem budnet.pl umowę o świadczenie usług drogą elektroniczną na czas nieokreślony, a także otrzymuje dane dostępowe do serwisu budnet.pl. Zawarcie umowy oznacza, że użytkownik:
- akceptuje postanowienia niniejszego regulaminu i zobowiązuje się do jego przestrzegania;
- potwierdza autentyczność podanych danych osobowych podczas procesu rejestracji;
- wyraża zgodę na otrzymywanie drogą elektroniczną, na konto e-mail podane w formularzu rejestracji, informacji handlowych oraz komunikatów na temat nowości w serwisie budnet.pl, wysłanych przez budnet.pl w imieniu własnym bądź na zlecenie innych podmiotów gospodarczych;
- zobowiązuje się do odpowiedzialności karnej/cywilnej w przypadku naruszenia przepisów prawa względem osoby trzeciej, jeżeli naruszenie to wynikało z zamieszczenia przez użytkownika materiałów niezgodnych z prawem i naruszających dobro osobiste osoby trzeciej. Tym samym zobowiązuje się do pokrycia wszelkich roszczeń wynikających z tego tytułu, jednocześnie zwalniając portal budnet.pl z odpowiedzialności zgodnie z art. 392 kodeksu cywilnego.
W przypadku zgłoszenia roszczeń przez osoby trzecie wynikających z ww. sytuacji przeciw portalowi budnet.pl, użytkownik zobowiązuje się do wystąpienia jako pozwany w miejsce budnet.pl.
Rozwiązanie umowy – użytkownik ma prawo w każdej chwili rozwiązać umowę z portalem budnet.pl, sam może usunąć swoje konto z serwisu, podając przyczynę, bądź zgłosić prośbę o usunięcie konta administratorowi serwisu.
Konto użytkownika może zostać automatycznie usunięte przez administratora w przypadku, gdy użytkownik:
- podejmuje działania niezgodne z prawem;
- notorycznie łamie regulamin portalu budnet.pl;
- podejmuje działania mogące zakłócać prawidłowe funkcjonowanie portalu oraz utrudniające korzystanie z serwisu pozostałym użytkownikom.
II. Korzystanie z usług portalu budnet.pl przez użytkownika
Dostęp do zasobów serwisu użytkownik otrzymuje po dokonaniu procesu rejestracji. Po aktywacji konta, użytkownik może korzystać z usług dostępnych na portalu budnet.pl. Może zarządzać swoim kontem, tworzyć nowe grupy, zamieszczać galerie, zdjęcia, filmy, notki, komentarze, korzystać z wewnętrznej poczty serwisu w taki sposób, aby nie naruszać przepisów prawa oraz zasad współżycia społecznego.
Warunkiem tworzenia grup, dodawania komentarzy, wszelkich materiałów graficznych i wideo jest posiadanie aktywnego konta w serwisie budnet.pl oraz akceptacja regulaminu wraz z następującymi uwarunkowaniami:
Użytkownik posiada autorskie prawa majątkowe do zamieszczanych materiałów nieograniczone na rzecz osób trzecich, bądź posiada licencje, uprawnienia do wykorzystywania tych materiałów w Internecie.
Użytkownik oświadcza, że posiada wszelkie prawa do materiałów, a także zgodę osób uwidocznionych na tych materiałach do publikacji w Internecie.
Użytkownikowi nie przysługuje żadne wynagrodzenie z tytułu zamieszczonych materiałów na portalu budnet.pl.
Użytkownik zamieszczając materiały, zgadza się na ich nieodpłatne i nieograniczone czasowo wykorzystanie i rozpowszechnianie przez redakcję portalu budnet.pl w obrębie serwisu (np. publikacja zdjęć na stronach portalu), a także zamieszczenie ich w newsletterze wysyłanym do subskrybentów budnet.pl.
Użytkownik nie może zamieścić w serwisie materiałów i komentarzy naruszających obowiązujące prawo polskie i międzynarodowe oraz zasady współżycia społecznego. Zabronione jest zamieszczanie materiałów i treści wulgarnych, obraźliwych, pornograficznych, naruszających dobra osobiste, łamiących zasady moralne, głoszących poglądy dyskryminacji, popierające i nakłaniające do popełnienia przestępstwa, naruszających dobre obyczaje. Konto użytkownika, który będzie zamieszczał ww. treści, a który nie zastosuje się do otrzymanych upomnień, zostanie usunięte z serwisu bez możliwości kolejnej rejestracji.
Użytkownik nie może również zamieszać treści komercyjnych w swoim koncie ani w żadnym miejscu na portalu. Materiały, wpisy i linki zamieszczone przez użytkownika będące jednocześnie reklamą dla różnych podmiotów gospodarczych będą usuwane przez administratora. Trzykrotne usunięcie takich wpisów powoduje zablokowanie konta użytkownika na okres 1 miesiąca. Po tym okresie konto zostanie aktywowane. Ponowne zamieszczenie 3 komercyjnych treści przez użytkownika oznacza usunięcie konta z serwisu bez możliwości kolejnej rejestracji.
III. Portal budnet.pl
Portal budnet.pl nie ponosi odpowiedzialności za treści zamieszczanych przez użytkowników materiałów i komentarzy.
Portal budnet.pl nie ponosi odpowiedzialności za naruszenie prawa polskiego oraz międzynarodowego, praw autorskich, a także współżycia społecznego przez użytkowników.
Portal budnet.pl nie ponosi odpowiedzialności za skutki pozyskanych z portalu materiałów i wykorzystaniu ich przez użytkowników / osoby trzecie w celach niezgodnych z prawem, bądź naruszających zasady współżycia społecznego.
Portal budnet.pl nie ponosi odpowiedzialności za zamieszczone przez użytkowników informacje i materiały typowo komercyjne, reklamujące produkty i usługi (opisy poszczególnych produktów, usług, informacje o cenach, dostępności, użyteczności, a także porównań do innych substytutów). Wszystkie materiały, które nie są wyraźnie oznaczone jako materiały o charakterze reklamowym, udostępniane są wyłącznie w celach informacyjnych i nie mogą wyrażać wsparcia dla konkretnego produktu, producenta lub dostawcy.
Portal budnet.pl bez uzyskania zgody danego użytkownika ma prawo do wykorzystania jego materiałów zgromadzonych w serwisie w pracach zarówno redaktorskich, jak i administracyjnych, bez ograniczeń czasowych w obrębie portalu budnet.pl, w taki sposób, aby inni użytkownicy portalu i całej sieci mogli zapoznać się z interesującym zagadnieniem.
Portal budnet.pl zastrzega sobie możliwość wykorzystania materiałów użytkowników na potrzeby redaktorskie w serwisie, a także prawo do zmiany rozmiaru zdjęć, filmów, przeredagowania materiałów użytkowników w celach zredagowania nowych artykułów na portal budnet.pl.
Tym samym portal budnet.pl zobowiązuje się do podania nicku użytkownika jako źródła bądź autora artykułu (w zależności od części materiału, jaka została wykorzystana na potrzeby redaktorskie; jeżeli materiał zostanie wykorzystany w całości, wtedy autorem artykułu będzie użytkownik).
Portal budnet.pl ma prawo do blokowania, a nawet usuwania kont użytkowników naruszających przepisy prawne bądź niniejszy regulamin, bez konieczności informowania ich o podjęciu takiej czynności.
Portal budnet.pl ma prawo do zawiadamiania odpowiednich służb i instytucji o naruszeniu/ złamaniu przepisów prawnych.
Portal budnet.pl ma obowiązek usunięcia konta użytkownika na jego prośbę.
IV. Dane osobowe / poufność
Portal budnet.pl oświadcza, a użytkownik przyjmuje do wiadomości, że w celu korzystania z usług portalu budnet.pl konieczne jest dokonanie procesu rejestracji, a tym samym podanie przez użytkownika autentycznych danych osobowych, a także adresu e-mail, na który zostaje przesłany link aktywacyjny, a który pozwala na dokończenie procesu rejestracji.
Użytkownik wyraża zgodę na przetwarzanie i wykorzystywanie przez budnet.pl swoich danych osobowych zgodnie z ustawą o ochronie danych osobowych z dnia 29.08.1997 r. (Dz. U. z 2002 r., nr 101, poz. 926). Portalu budnet.pl ma prawo do przetwarzania danych osobowych w celach marketingowych, administracyjnych i statystycznych.
Użytkownik wyraża zgodę na gromadzenie, przetwarzanie i wykorzystywanie swoich danych osobowych, a także w szczególności adresu e-mail poczty elektronicznej przez portal budnet.pl w celu reklamy, badania rynku oraz zachowań i preferencji usługobiorców z przeznaczeniem wyników tych badań na polepszenie jakości usług świadczonych przez budnet.pl – zgodnie z ustawą z dnia 18.07.2002 r. o świadczeniu usług drogą elektroniczną.
V. Postanowienia końcowe
W sprawach, które nie są uregulowane niniejszym regulaminem, mają zastosowanie aktualnie obowiązujące przepisy prawne oraz przepisy ustawy o świadczeniu usług drogą elektroniczną.
Portal budnet.pl zastrzega sobie możliwość zmiany regulaminu – za dwutygodniowym uprzedzeniem o wprowadzeniu nowego regulaminu bądź zmiany w regulaminie.
W przypadku uwag i pytań dotyczących działalności portalu budnet.pl prosimy o kontakt z administratorem portalu e-mail: admin@budnet.pl, bądź listownie: Portal budnet.pl, ul. Grunwaldzka 5, 99-300 Kutno.
Regulamin wchodzi w życie z dniem 9 grudnia 2010.
Proszę czekać, trwa wczytywanie danych...
Czy na pewno chcesz zgłosić nadużycie przez podany post moderatorowi?