Informacje podstawowe:
- Przedmiot oferty: Dom
- Typ oferty: sprzedam
- Cena: 597000
- Cena za m²: 2842 86
- Powierzchnia: 210.00 m²
- Województwo: małopolskie
- Powiat: nowosądecki
- Miejscowość: Krynica-Zdrój
- Liczba pięter: 3
- Rok budowy: 1970
- Forma nabycia: umowa sprzedaży
- Ogrzewanie: własne dla budynku
- Dojazd: droga utwardzona
- Położenie: działki zabudowane
- Nr oferty: 307358
Przedmiotem oferty jest dom 210m 2 w Krynicy
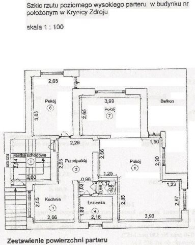
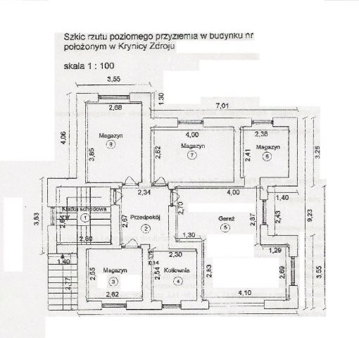
Jest to dom wolnostojący o powierzchni całkowitej 210m 2 . Znajduje się na 5arowej działce (możliwość dokupienia 10arów). Posiada 3 kondygnacje, układ klatki schodowej sprawia, że każde z pięter ma osobne wejście, co daje możliwość przerobienia go na trzy oddzielne mieszkania lub przystosowania go do roli pensjonatu.
Jest to budynek murowanny przykryty blachą. Do budynku doprowadzony gaz, prąd, woda. Dom jest do remontu. Co w tym konkretnym przypadku, pozwala na zrobienie go wg swojego gustu i upodobań. Ma bardzo praktyczny układ pomieszen co widać na załączonych rzutach. Każde z pieter posiada duży balkon lub taras.
Jest położony w bardzo cichej i spokojnej i zielonej okolicy, a jednoczesnie dojazd do centrum Krynicy zajmuje 2minuty.
UWAGA - KUPUJĄCY ZWOLNIONY Z OPŁATY DLA BIURA POŚREDNICTWA! CAŁOŚĆ WYNAGRODZENIA POKRYWA SPRZEDAJĄCY.
ZADZWOŃ I UMÓW SIĘ NA SPOTKANIE. JEST TO ZUPEŁNIE DARMOWE I NIEZOBOWIĄZUJĄCE!
0-604 630 144
Oferta wysłana z systemu Galactica Virgo Pomagamy w uzyskaniu kredytów bankowych. Współpracujemy z największymi Bankami, negocjujemy warunki kredytowe.
Sprawdź pełną ofertę nieruchomości na www.houseexpert.pl.
Informacje uzupełniające:
- Balkony:duży
- Tarasy:taras mały
- Okna:stare drewniane
- Instalacje:nie wymienione
- Rodzaj domu:wolnostojący
- Pokrycie dachu:blacha
- Stan:do remontu
- Garaż:w budynku
- Zagospodarowanie działki:Czesciowo
- Kształt działki:prostokąt
- Typ elewacji:tynk zwykły
- Powierzchnia działki:500.00 m²
Polecane ogłoszenia
-
Dom - sprzedam
mazowieckie, Warszawa Ursynów, ----------------------------- Cena: 2600000 -
Dom - sprzedam
mazowieckie, Warszawa Włochy Cena: 1200000 -
Dom - wynajmę
mazowieckie, Warszawa Bemowo Cena: 4500
Szukaj ogłoszeń
Inne ogłoszenia
-
Dom - sprzedam
małopolskie, nowosądecki, Krynica-Zdrój Cena: 550000 -
Dzialka - sprzedam
małopolskie, nowosądecki, Krynica-Zdrój Cena: 1700000 -
Mieszkanie - sprzedam
małopolskie, nowosądecki, Muszyna (gw) Cena: 279000 -
Mieszkanie - sprzedam
małopolskie, nowosądecki, Krynica-Zdrój Cena: 169000 -
Biurowiec - sprzedam
małopolskie, nowosądecki, Krynica-Zdrój Cena: 2500000

