Informacje podstawowe:
- Przedmiot oferty: Lokal
- Typ oferty: sprzedam
- Cena: 902538
- Cena za m²: 6300 00
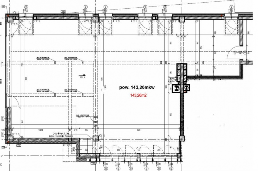
- Powierzchnia: 143.26 m²
- Województwo: dolnośląskie
- Miejscowość: Wrocław
- Ulica / dzielnica: gabinet medyczny Krzyki
- Liczba pięter: 2
- Piętro: 2
- Rok budowy: 2012
- Standard: 5
- Ogrzewanie: własne dla budynku
- Nr oferty: 10310884
Informacje dodatkowe:
- ciepła - bojler
Gabinet medyczny na 2 piętrze w budynku wyłącznie pod usługi medyczne.
Lokal gotowy do aranżacji , trójstronny - wystawa okien południowo-wschodnio-północna
wysokość lokalu ponad 3 m ( lokal posiada skosy, więc całkowita powierzchnia jest o wiele większa)
budynek spełnia wymogi unijne;
recepcja, szpitalna winda, ochrona i monitoring
budynek dostosowany do potrzeb osób niepełnosprawnych
70 stanowisk parkingowych
Istnieje możliwość wykończenia gabinetu na zlecenie Kupującego.
Możliwy również wynajem za 45 zł/m2 + Vat
Budynek trzykondygnacyjny, dwupiętrowy z pomieszczeniami sanitarnymi na parterze (w tym toaleta dla osób niepełnosprawnych), szpitalną windą. Obiekt spełnia wszelkie wymogi techniczne dot. branży medycznej, dostosowany jest do potrzeb osób niepełnosprawnych, posiada wygodny niezależny parking dla pacjentów i lekarzy.
Polecam !
Kontakt: Anna tel.609-641-922
email: estata@estata.pl
Prowizję biura pokrywa sprzedający.
Oferta wysłana z systemu Galactica Virgo
Informacje uzupełniające:
- Stan:do wykończenia
- Dodatkwoe opłaty w czynszu:CO,monitoring,ochrona,woda,wywóz śmieci
- Usytuowanie:trójstronne
- Położenie:w pobliżu głównego ciągu pieszych
- Wejście:od ulicy
- Ilość wejśc:1
- Rodzaj lokalu:Jednopoziomowy
- Przeznaczenie lokalu:usługowy,użytkowy
Polecane ogłoszenia
-
Dom - sprzedam
mazowieckie, Warszawa Ursynów, ----------------------------- Cena: 2600000 -
Dom - sprzedam
mazowieckie, Warszawa Włochy Cena: 1200000 -
Dom - wynajmę
mazowieckie, Warszawa Bemowo Cena: 4500
Szukaj ogłoszeń
Inne ogłoszenia
-
Mieszkanie - sprzedam
dolnośląskie, Wrocław, Łukasińskiego Śródmieście Cena: 329000 -
Mieszkanie - sprzedam
dolnośląskie, Wrocław, super osiedle Krzyki Cena: 269000 -
Mieszkanie - sprzedam
dolnośląskie, Wrocław, Wilanowska ok./taras na dachu 300 m2 Psie Pole Cena: 635000 -
Mieszkanie - sprzedam
dolnośląskie, Wrocław, /super jednopoziomowy apartament / Krzyki Cena: 1007568 -
Mieszkanie - sprzedam
dolnośląskie, Wrocław, Pl.Bema ok./ Na Szańcach Śródmieście Cena: 439000

