Informacje podstawowe:
- Przedmiot oferty: Lokal
- Typ oferty: sprzedam
- Cena: 1300000
- Cena za m²: 9345 79
- Powierzchnia: 139.10 m²
- Województwo: małopolskie
- Miejscowość: Kraków
- Ulica / dzielnica: Dębniki
- Liczba pięter: 3
- Rok budowy: 2011
- Standard: 4
- Forma nabycia: umowa sprzedaży
- Dojazd: kostka brukowa
- Nr oferty: 309422
Informacje dodatkowe:
- klimatyzowane
- ciepła - bojler
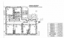
Do sprzedania lokal o pow. 139,1m2 na terenie nowego osiedla w okolicach ul. Torfowej. Lokal znajduje się na parterze w trzypiętrowym budynku.
Lokal składa się z: recepcji z komunikacją i poczekalnią, sześciu gabinetów, pomieszczenia socjalnego, łazienki z WC oraz z WC.
Lokal wykończony z dużą dbałością o detale w wysokim standardzie idealnie przystosowany pod wymagające branże typu: salon kosmetyczny, gabinet masażu, małą prywatną przychodnię, gabinet stomatologiczny.
W lokalu pozostanie stała zabudowa.
Do podanej ceny należy doliczyć podatek VAT.
Cena do niewielkiej negocjacji.
Zapraszam osoby zainteresowane.
Oferta wysłana z systemu Galactica Virgo
Informacje uzupełniające:
- Stan:do odświeżenia
- Termin wydania:do uzgodnienia
- Dodatkwoe opłaty w czynszu:woda,wywóz śmieci
- Dodatkowe opłaty - licznik:gaz,prąd
- Usytuowanie:narożne
- Okna:nowe PCV
- Położenie:na osiedlu
- Witryna wystawowa:mała
- Wejście:od ulicy
- Ilość wejśc:2
- Podłogi:różnorodne
- Rodzaj lokalu:Jednopoziomowy
Polecane ogłoszenia
-
Dom - sprzedam
mazowieckie, Warszawa Ursynów, ----------------------------- Cena: 2600000 -
Dom - sprzedam
mazowieckie, Warszawa Włochy Cena: 1200000 -
Dom - wynajmę
mazowieckie, Warszawa Bemowo Cena: 4500
Szukaj ogłoszeń
Inne ogłoszenia
-
Mieszkanie - sprzedam
małopolskie, Kraków, Dębniki Cena: 304000 -
Lokal - wynajmę
małopolskie, Kraków, Podgórze Duchackie Cena: do uzgodnienia -
Mieszkanie - wynajmę
małopolskie, Kraków, Podgórze Cena: 6990 -
Mieszkanie - wynajmę
małopolskie, Kraków, Stare Miasto Cena: 1999 -
Mieszkanie - sprzedam
małopolskie, Kraków, Podgórze Duchackie Cena: 360000

