Informacje podstawowe:
- Przedmiot oferty: Lokal
- Typ oferty: sprzedam
- Cena: 11688
- Cena za m²: 45 00
- Powierzchnia: 259.75 m²
- Województwo: małopolskie
- Miejscowość: Kraków
- Ulica / dzielnica: Podgórze
- Liczba pięter: 2
- Piętro: 2
- Standard: 5
- Ogrzewanie: własne dla budynku
- Dojazd: asfalt
- Nr oferty: 322246
Informacje dodatkowe:
- centralne
- ciepła - bojler
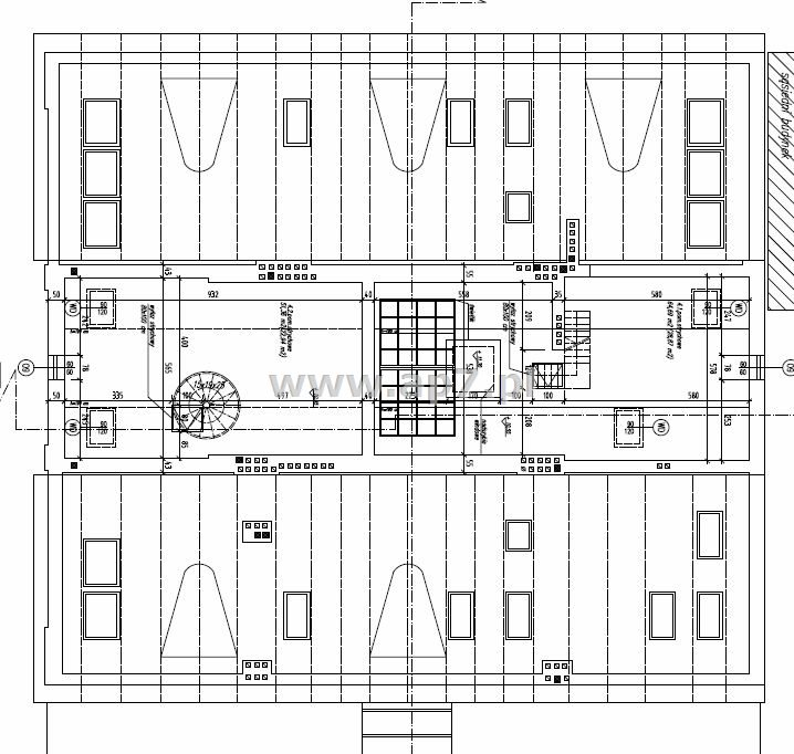
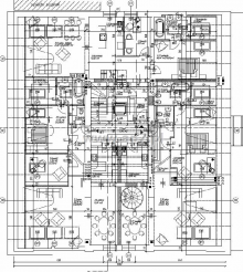
Do wynajęcia lokal biurowy o pow. użytkowej wynoszącej 259,75m2 i pow. całkowitej wynoszącej 314,59m2 zajmujący drugie piętro w bardzo reprezentacyjnym i stylowym dwupiętrowym budynku biurowym na Starym Podgórzu.
Budynek po generalnym remoncie (wymieniono wszystkie możliwe instalacje oraz pięknie odrestaurowano go od zewnątrz) wykończony w wysokim standardzie. Dodatkowo została zamontowana nowoczesna cichobieżna winda. Budynek monitorowany 24h oraz dodatkowo zatrudniony jest stróż w godzinach pracy najemców.
W częściach wspólnych (tj. klatach schodowych) podłogi wyłożone zostały eleganckim beżowym marmurem a ściany pomalowano na neutralne kolory.
Lokal ten składa się z 13 pokoi, dwóch łazienek oraz komunikacji.
Dodatkowo do II piętra dochodzi poddasze o pow. całkowitej wynoszącej 116,05m2 i pow. użytkowej wynoszącej 51,81m2.
Na podłogach w biurach położona została wykładzina, ściany pokryte gładziami gipsowymi oraz elegancko pomalowane.
Powierzchnia biurowa klimatyzowana.
Istnieje możliwość wynajmowania sali konferencyjnej mieszczącej się na parterze na godziny.
Do ceny najmu należy doliczyć 16zł netto/m2 (ogrzewanie, klimatyzacja, woda i ścieki, winda, sprzątanie i oświetlenie części wspólnych, konserwacja budynku ) oraz prąd oraz śmieci. Internet oraz linie telefoniczne płatne na podstawie indywidualnych umów Najemcy. Istnieje możliwość wynajęcia miejsca postojowego na prywatnym parkingu w cenie 250zł netto od samochodu - cena ulega negocjacji w przypadku wynajmu większej ilości samochodów.
Wysokość kaucji uzależniona od długości okresu wypowiedzenia..
Istnieje możliwość wynajęcia dodatkowo parteru, drugiego piętra lub całego biurowca.
PRZY NAJMIE DŁUGOTERMINOWYM ISTNIEJE MOŻLIWOŚĆ DOSTOSOWANIA ILOŚCI POMIESZCZEŃ.
W okolicy siedziby firm, sklepy, banki, urzędy oraz restauracje/puby.
Zapraszam osoby zainteresowane.
Oferta wysłana z systemu Galactica Virgo
Informacje uzupełniające:
- Stan:bardzo dobry
- Termin wydania:wolne od
- Data wydania:2014-01-06
- Dodatkwoe opłaty w czynszu:CO,monitoring,ochrona,woda
- Dodatkowe opłaty - licznik:CO,prąd,woda
- Usytuowanie:dwustronne
- Okna:nowe drewniane
- Położenie:w pobliżu głównego ciągu pieszych
- Wejście:od ulicy
- Ilość wejśc:1
- Rodzaj lokalu:Jednopoziomowy
Polecane ogłoszenia
-
Dom - sprzedam
mazowieckie, Warszawa Ursynów, ----------------------------- Cena: 2600000 -
Dom - sprzedam
mazowieckie, Warszawa Włochy Cena: 1200000 -
Dom - wynajmę
mazowieckie, Warszawa Bemowo Cena: 4500
Szukaj ogłoszeń
Inne ogłoszenia
-
Mieszkanie - sprzedam
małopolskie, Kraków, Dębniki Cena: 304000 -
Lokal - wynajmę
małopolskie, Kraków, Podgórze Duchackie Cena: do uzgodnienia -
Mieszkanie - wynajmę
małopolskie, Kraków, Podgórze Cena: 6990 -
Mieszkanie - wynajmę
małopolskie, Kraków, Stare Miasto Cena: 1999 -
Mieszkanie - sprzedam
małopolskie, Kraków, Podgórze Duchackie Cena: 360000

