Informacje podstawowe:
- Przedmiot oferty: Lokal
- Typ oferty: sprzedam
- Cena: 14817
- Cena za m²: 55 00
- Powierzchnia: 269.40 m²
- Województwo: małopolskie
- Miejscowość: Kraków
- Ulica / dzielnica: Podgórze
- Liczba pięter: 3
- Piętro: 1
- Rok budowy: 2012
- Standard: 3
- Ogrzewanie: miejskie
- Dojazd: asfalt
- Nr oferty: 196340
Informacje dodatkowe:
- ciepła - bojler
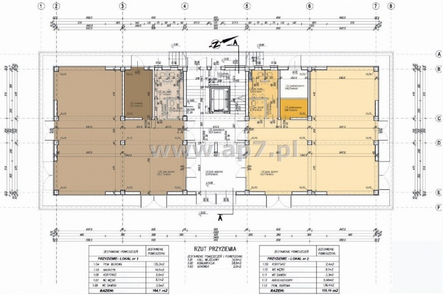
Polecamy do wynajęcia powierzchnie biurowe w nowym biurowcu, wybudowanym w 2012 roku w pobliżu ulic Dekerta i Klimeckiego. Budynek ma powierzchni całkowitej 1800m2 na którą składają się 4 kondygnacje. W chwili obecnej wszystkie piętra tworzą powierzchnie typu open space do własnej aranżacji przez Klienta. Oferowany lokal ma powierzchni 269,4m2 i usytuowany jest na pierwszym piętrze. Składa się z jednego dużego pomieszczenia o metrażu 187,8m2 oraz pomieszczenia socjalnego (6,5m2), magazynu (15,2m2) i dwóch toalet. Istnieje możliwość wykończenia lokalu pod wymagania Klienta. Podobne lokale dostępne są również na parterze, I, II i III piętrze. Budynek wyposażony jest w sieć komputerową, instalację telefoniczną a także alarm i monitoring. Dodatkowo zamontowana jest klimatyzacja i wentylacja mechaniczna oraz winda. Istnieje możliwość umieszczenia reklamy na zewnątrz. Przed budynkiem znajduje się 30 miejsc parkingowych. Opłaty miesięczne to: czynsz najmu w wysokości 45zł netto/m2 na parterze i 55zł/m2 na pozostałych kondygnacjach. Do tego należy doliczyć opłaty eksploatacyjne w wysokości 13zł netto/m2 i media wg wskazań liczników. Rewelacyjna lokalizacja!!!Budynek znajduje się w jednej z najszybciej rozwijających się dzielnic Krakowa na Zabłociu. Dokoła znajdują się liczne przystanki autobusowe i tramwajowe, które gwarantują szybki dojazd w każdą część Krakowa. Ponadto w odległości zaledwie 2km znajduje się Galeria Kazimierz, 1 km Krakowska Wyższa Szkoła im.Frycza Modrzewskiego. Stąd niedaleko także do Rynku Głównego i Centrum Handlowego King Square. Budynek zostanie oddany pod koniec 2012 roku. Polecam i zapraszam do oglądania!!!
Oferta wysłana z systemu Galactica Virgo
Informacje uzupełniające:
- Stan:deweloperski
- Termin wydania:do uzgodnienia
- Dodatkowe opłaty - licznik:CO,prąd,woda,woda ciepła i zimna
- Wejście:od ulicy
- Rodzaj lokalu:Jednopoziomowy
- Przeznaczenie lokalu:biurowy,handlowy,usługowy,użytkowy
Polecane ogłoszenia
-
Dom - sprzedam
mazowieckie, Warszawa Ursynów, ----------------------------- Cena: 2600000 -
Dom - sprzedam
mazowieckie, Warszawa Włochy Cena: 1200000 -
Dom - wynajmę
mazowieckie, Warszawa Bemowo Cena: 4500
Szukaj ogłoszeń
Inne ogłoszenia
-
Mieszkanie - sprzedam
małopolskie, Kraków, Dębniki Cena: 304000 -
Lokal - wynajmę
małopolskie, Kraków, Podgórze Duchackie Cena: do uzgodnienia -
Mieszkanie - wynajmę
małopolskie, Kraków, Podgórze Cena: 6990 -
Mieszkanie - wynajmę
małopolskie, Kraków, Stare Miasto Cena: 1999 -
Mieszkanie - sprzedam
małopolskie, Kraków, Podgórze Duchackie Cena: 360000

