Informacje podstawowe:
- Przedmiot oferty: Mieszkanie
- Typ oferty: sprzedam
- Cena: 566000
- Cena za m²: 5903 83
- Powierzchnia: 95.87 m²
- Województwo: kujawsko-pomorskie
- Miejscowość: Bydgoszcz
- Ulica / dzielnica: Śródmieście
- Liczba pokoi: 3
- Liczba pięter: 4
- Piętro: 2
- Rok budowy: 1996
- Standard: 5
- Ogrzewanie: miejskie
- Dojazd: asfalt
- Położenie: działki zabudowane
- Nr oferty: 284511
Informacje dodatkowe:
- nie
|
Przestronne, dobrze zaprojektowane mieszkanie M-4 o powierzchni 95,87m2 w Śródmieściu w budynku z windą.
Budynek na terenie ogrodzonym. Możliwość dokupienia garażu murowanego i miejsca parkingowego!!
Mieszkanie w bardzo dobrym stanie technicznym!!
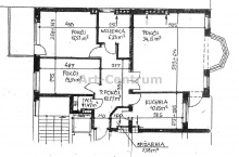
Układ mieszkania z oddzielną, przestronną kuchnią 10,65m2 ( +spiżarnia 2,58m2) . Łazienka 6,23m2 i osobno WC 1,47m2. Sypialnia 13,34m2 oraz druga 16,53m2 posiadająca wyjście na przeszklony ogród zimowy (7m2). Przestronny salon 34,8m2 z kominkiem, wykuszem i dostępem do loggii. Do mieszkania przynależy piwnica 10,5m2 i duże pomieszczenie 28m2 np. na salkę ćwiczeń itp.
Polecam! zapraszam na prezentację.
Uwaga - prowizję dla biura płaci tylko sprzedający!!
::DODATKOWE INFORMACJE |
Rodzaj budynku: nowe budownictwo |
Gaz: tak - miejski |
Woda: tak - miejska |
Dojazd: asfalt |
Otoczenie: działki zabudowane |
Ogrzewanie: miejskie |
Linie telefoniczne: TAK |
Internet: TAK |
Komunikacja publ.: tramwaj, autobus miejski |
Winda: TAK |
Ilość wind: 1 |
Rozkład: dwustronne rozkładowe |
Usytuowanie: dwustronne |
Drzwi antywłamaniowe: TAK |
Teren ogrodzony: TAK |
Rodzaj mieszkania: jednopoziomowe |
Garaż: garaż murowany |
Piwnica [m2]: 39,40 |
Piwnica: TAK |
Wystawa okien: Pn-Zach, Pd-Wsch |
Stan lokalu: komfortowe |
Okna: PCV |
Instalacje: nowe |
Balkon: jest |
Ilość balkonów: 2 |
Powierzchnia balkonów/tarasów [m2]: 13,00 |
Rok budowy: 1996 |
Ilość pokoi: 3 |
Ilość sypialni: 2 |
Powierzchnia pokoi [m2]: 34,8m2-salon/16,53m2-sypialnia/13,34m2-sypialnia |
Podłogi pokoi: parkiet |
Ściany pokoi: gładzie gipsowe |
Wystawa okien - pokoje : Pn-Zach, Pd-Wsch |
Typ kuchni: oddzielna |
Rodzaj kuchni: z możliwością pozostawienia zabudowy |
Powierzchnia kuchni [m2]: 13,23 |
Podłoga kuchni: terakota |
Wystawa okien - kuchnia: Pd-Wsch |
Typ łazienki: osobno z wc |
Ilość łazienek: 1 |
Powierzchnia łazienki [m2]: 6,23 |
Podłoga łazienki: terakota |
Wyposażenie łazienki: wanna, natrysk |
Ściany łazienki: glazura, gładzie gipsowe |
Ilość WC: 1 |
Powierzchnia WC: 1,47 |
Glazura WC: nowego typu |
Podłoga WC: terakota |
Ściany WC: glazura, gładzie gipsowe |
Ilość przedpokoi: 1 |
Powierzchnia przedpokoi [m2]: 10,27 |
Podłoga przedpokoi: parkiet |
Ściany przedpokoi: gładzie gipsowe |
::LINK DO STRONY |
http://www.art-centrum.eu/oferta.aspx?id=284511
::KONTAKT DO AGENTA |
Adam Nowak |
667 447 955 |
adam.nowak@art-centrum.eu
|
Oferta wysłana z systemu Galactica Virgo Firma Art-Centrum Nieruchomości zastrzega, że treść niniejszego ogłoszenia nie stanowi oferty w rozumieniu Kodeksu Cywilnego. Proszę je traktować jako zaproszenie do rokowań w rozumieniu art. 71 Kodeksu Cywilnego.
Informacje uzupełniające:
- Garaż:garaż murowany
- Termin wydania:natychmiast
- Ogrzewanie:miejskie
- Rozkład:dwustronne rozkładowe
- Balkon:jest
- Ilość balkonów:2
- Piwnica:39.40 m²
- Okna - stan:PCV
- Usytuowanie:dwustronne
Polecane ogłoszenia
-
Dom - sprzedam
mazowieckie, Warszawa Ursynów, ----------------------------- Cena: 2600000 -
Dom - sprzedam
mazowieckie, Warszawa Włochy Cena: 1200000 -
Dom - wynajmę
mazowieckie, Warszawa Bemowo Cena: 4500
Szukaj ogłoszeń
Inne ogłoszenia
-
Mieszkanie - sprzedam
kujawsko-pomorskie, Bydgoszcz, Śródmieście Cena: 186000 -
Mieszkanie - sprzedam
kujawsko-pomorskie, Toruń, Podgórz Cena: 186000 -
Mieszkanie - sprzedam
kujawsko-pomorskie, Toruń, Rubinkowo I Cena: 179000 -
Mieszkanie - sprzedam
kujawsko-pomorskie, Toruń, Mokre Cena: 115000 -
Mieszkanie - sprzedam
kujawsko-pomorskie, inowrocławski, Inowrocław (gw) Cena: 139000

