Informacje podstawowe:
- Przedmiot oferty: Mieszkanie
- Typ oferty: sprzedam
- Cena: 120013
- Cena za m²: 4422 00
- Powierzchnia: 27.14 m²
- Województwo: kujawsko-pomorskie
- Miejscowość: Bydgoszcz
- Ulica / dzielnica: Szwederowo
- Liczba pokoi: 1
- Liczba pięter: 2
- Ogrzewanie: miejskie
- Dojazd: asfalt
- Nr oferty: 30270335
Informacje dodatkowe:
- nie
|
Nowa inwestycja na bydgoskim Szwederowie!
Kompleks dwóch budynków mieszkalnych wielorodzinnych na terenie ogrodzonym. Na każdy z nich składa się podziemna hala garażowa z komórkami lokatorskimi oraz trzy kondygnacje mieszkalne - łącznie 50 mieszkań. Budynek A podzielony na 4 klatki schodowe, na każdej klatce od 2do 4 mieszkań. Budynek B położony w głębi - mały, kameralny, dwuklatkowy, na który składa si tylko 12 mieszkań. Mieszkania rozkładowe z wyjątkiem kawalerek. Szeroka gama metraży i układów, z oddzielną kuchnią lub aneksem kuchennym. Większe mieszkania z garderobą, każde posiada balkon. Niektóre mają nawet dwa balkony. Na życzenie klienta istnieje możliwość łączenia mieszkań oraz zmiana rozkładu wnętrza poprzez korektę układu ścian działowych
. Mieszkania będą oddawane w stanie deweloperskim, tj. posadzki betonowe, ściany i sufity - gładzie gipsowe malowane na biało, parapety wewnętrzne pcv (balkonowe panoramiczne), drzwi antywłamaniowe, zamontowane wszystkie gniazda i włączniki elektryczne.
Teren ogrodzony, monitorowany, wszystkie bramy sterowane elektrycznie , na pilota. Patio z placem zabaw.
Termin zakończenia inwestycji: IV kwartał 2013r.
Kontakt: Joanna 669-666-721
::DODATKOWE INFORMACJE |
Rodzaj budynku: nowe budownictwo |
Piętro: wysoki parter
Dozór budynku: Monitoring |
Głośność: Ciche |
Plac zabaw: TAK |
Woda: tak - miejska |
Dojazd: asfalt |
Ogrzewanie: miejskie |
Linie telefoniczne: TAK |
Internet: TAK |
Telewizja kablowa: TAK |
Komunikacja publ.: autobus miejski |
Winda: NIE |
Usytuowanie: jednostronne |
Drzwi antywłamaniowe: TAK |
Teren ogrodzony: TAK |
Opłaty wg liczników: prąd, CO, woda |
Rodzaj mieszkania: jednopoziomowe |
Garaż: garaż pod budynkiem |
Piwnica: TAK |
Stan lokalu: do wykończenia |
Okna: nowe PCV |
Instalacje: nowe |
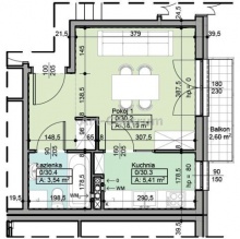
Balkon: jest |
Ilość balkonów: 1 |
Powierzchnia balkonów/tarasów [m2]: 2,60 |
Ilość pokoi: 1 |
Wysokość pomieszczeń [m]: 2,60 |
Powierzchnia pokoi [m2]: 18,19 |
Podłogi pokoi: wylewka |
Ściany pokoi: gładzie gipsowe |
Typ kuchni: oddzielna |
Rodzaj kuchni: bez zabudowy |
Powierzchnia kuchni [m2]: 5,41 |
Podłoga kuchni: wylewka |
Typ łazienki: osobno z wc |
Ilość łazienek: 1 |
Powierzchnia łazienki [m2]: 3,54 |
Glazura łazienki: bez glazury |
Podłoga łazienki: wylewka |
Ściany łazienki: gładź-gipsowa |
::LINK DO STRONY |
http://www.art-centrum.eu/oferta.aspx?id=270335
::KONTAKT DO AGENTA |
Joanna Malicka |
669 666 721 |
joanna.malicka@art-centrum.eu
|
Oferta wysłana z systemu Galactica Virgo Firma Art-Centrum Nieruchomości zastrzega, że treść niniejszego ogłoszenia nie stanowi oferty w rozumieniu Kodeksu Cywilnego. Proszę je traktować jako zaproszenie do rokowań w rozumieniu art. 71 Kodeksu Cywilnego.
Informacje uzupełniające:
- Garaż:garaż pod budynkiem
- Wysokość pomieszczeń:2.60 m
- Ogrzewanie:miejskie
- Dozór budynku:Monitoring
- Głośność:Ciche
- Balkon:jest
- Ilość balkonów:1
- Okna - stan:nowe PCV
- Usytuowanie:jednostronne
Polecane ogłoszenia
-
Dom - sprzedam
mazowieckie, Warszawa Ursynów, ----------------------------- Cena: 2600000 -
Dom - sprzedam
mazowieckie, Warszawa Włochy Cena: 1200000 -
Dom - wynajmę
mazowieckie, Warszawa Bemowo Cena: 4500
Szukaj ogłoszeń
Inne ogłoszenia
-
Mieszkanie - sprzedam
kujawsko-pomorskie, Bydgoszcz, Śródmieście Cena: 186000 -
Mieszkanie - sprzedam
kujawsko-pomorskie, Toruń, Podgórz Cena: 186000 -
Mieszkanie - sprzedam
kujawsko-pomorskie, Toruń, Rubinkowo I Cena: 179000 -
Mieszkanie - sprzedam
kujawsko-pomorskie, Toruń, Mokre Cena: 115000 -
Mieszkanie - sprzedam
kujawsko-pomorskie, inowrocławski, Inowrocław (gw) Cena: 139000

