Informacje podstawowe:
- Przedmiot oferty: Mieszkanie
- Typ oferty: sprzedam
- Cena: 298978
- Cena za m²: 5549 99
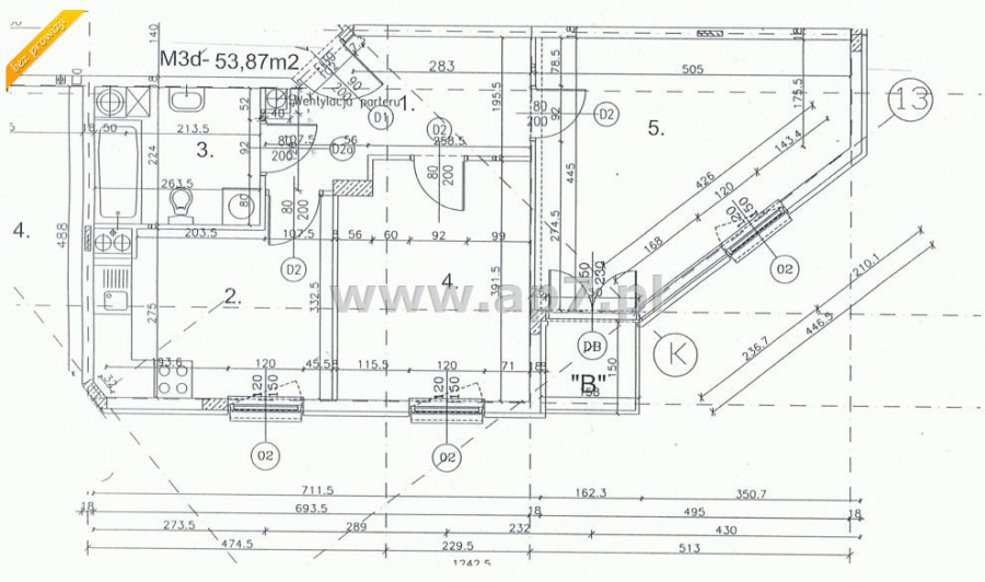
- Powierzchnia: 53.87 m²
- Województwo: małopolskie
- Miejscowość: Kraków
- Ulica / dzielnica: Bronowice
- Liczba pokoi: 2
- Liczba pięter: 3
- Piętro: 3
- Rok budowy: 2012
- Ogrzewanie: piec gazowy dwufunkcyjny
- Dojazd: kostka brukowa
- Położenie: działki zabudowane
- Nr oferty: 269213
OFERTA BEZPROWIZYJNA
Do sprzedania dwupokojowe mieszkanie o pow. 53,87m2 w nowym budownictwie przy ul. Weryhy-Darowskiego w Krakowie. Mieszkanie znajduje się na trzecim piętrze w trzypiętrowym bloku. Istnieje możliwość dokupienia miejsca postojowego na zewnętrznym parkingu w cenie 6 000zł.
Mieszkanie składa się z: przedpokoju, dwóch nieprzechodnich pokoi, kuchni, łazienki z WC.
W mieszkaniu na podłodze położone zostały wylewki cementowe. Ściany przygotowane pod malowanie lub tapetowanie wg standardu tynku kat. III. Zamontowano okna plastikowe, grzejniki, ruraż instalacji sanitarnej, oprzewodowanie instalacji elektrycznej. W mieszaniu nie została zamontowana stolarka wewnętrzna oraz nie ma montażu białego. Dodatkowo w kuchni zamontowano instalacje elektryczną i gazową przystosowane do montażu kuchenki gazowej lub elektrycznej. Mieszkanie ogrzewane za pomocą pieca gazowego dwufunkcyjnego.
Zapraszam osoby zainteresowane. Więcej ofert znajdziecie Państwo na naszej stronie internetowej www.ap7.pl
Oferta wysłana z systemu Galactica Virgo
Informacje uzupełniające:
- Wysokość pomieszczeń:2.53 m
- Termin wydania:natychmiast
- Ogrzewanie:piec gazowy dwufunkcyjny
- Głośność:Ciche
- Balkon:brak
- Widok:na inne budynki
- Okna - stan:nowe PCV
Polecane ogłoszenia
-
Dom - sprzedam
mazowieckie, Warszawa Ursynów, ----------------------------- Cena: 2600000 -
Dom - sprzedam
mazowieckie, Warszawa Włochy Cena: 1200000 -
Dom - wynajmę
mazowieckie, Warszawa Bemowo Cena: 4500
Szukaj ogłoszeń
Inne ogłoszenia
-
Mieszkanie - sprzedam
małopolskie, Kraków, Dębniki Cena: 304000 -
Lokal - wynajmę
małopolskie, Kraków, Podgórze Duchackie Cena: do uzgodnienia -
Mieszkanie - wynajmę
małopolskie, Kraków, Podgórze Cena: 6990 -
Mieszkanie - wynajmę
małopolskie, Kraków, Stare Miasto Cena: 1999 -
Mieszkanie - sprzedam
małopolskie, Kraków, Podgórze Duchackie Cena: 360000

