Informacje podstawowe:
- Przedmiot oferty: Mieszkanie
- Typ oferty: sprzedam
- Cena: 345000
- Cena za m²: 5307 69
- Powierzchnia: 65.00 m²
- Województwo: małopolskie
- Miejscowość: Kraków
- Ulica / dzielnica: os. Oświecenia Mistrzejowice
- Liczba pokoi: 3
- Piętro: 2
- Standard: 5
- Forma nabycia: umowa sprzedaży
- Ogrzewanie: miejskie
- Dojazd: asfalt
- Położenie: działki zabudowane
- Nr oferty: 387533
Informacje dodatkowe:
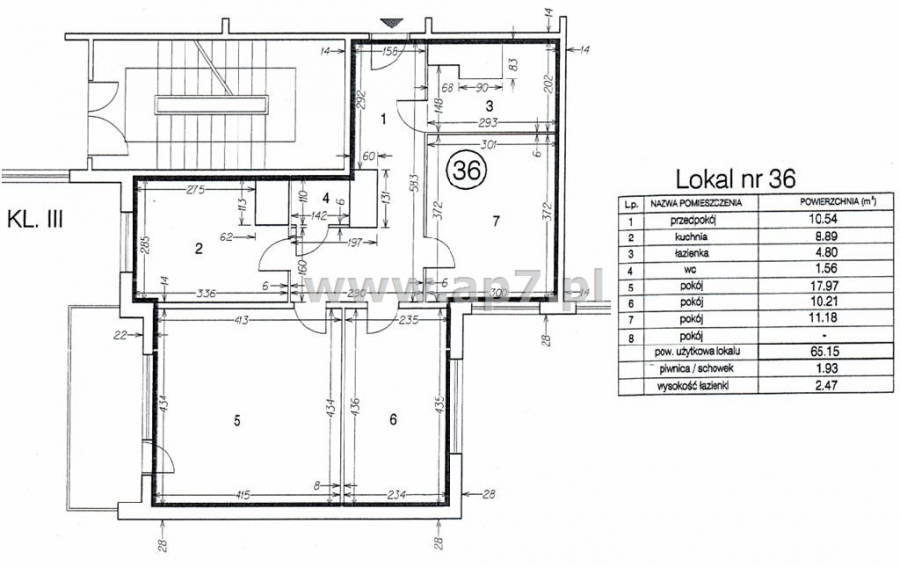
Do sprzedania mieszkanie o pow. 65,15 m 2 w Krakowie w dzielnicy Nowa Huta.
Mieszkanie zlokalizowane jest na os. Oświecenia, na II piętrze w wieżowcu.
Składa się z przedpokoju (10,54 m 2 ), salonu (17,97 m 2 ), oddzielnej kuchni (8,89 m 2 ), 2 sypialni (10,21 m 2 , 11,18 m 2 ), łazienki (4,80 m 2 ), osobnej toalety (1,56 m 2 ) oraz balkonu (wyjście z salonu - 6,5 m 2 ).
Do mieszkania przynależy również piwnica o pow. 1,93 m 2 .
Mieszkanie jest umeblowane. W kuchni zabudowa kuchenna oraz sprzęt AGD (lodówka, zamrażarka, kuchnia gazowa, piekarnik elektryczny, zmywarka, elektryczny podgrzewacz do wody, okap). W przedpokoju szafa wnękowa oraz szafka na buty. W łazience pralka.
Wymieniono instalacje elektryczną oraz wodno - kanalizacyjną.
Czynsz wynosi 312 PLN + 49,50 zł/os.
Ekspozycja zachód - południe - wschód
Atrakcyjna lokalizacja, w pobliżu wiele sklepów oraz lokali usługowych. Niedaleko przystanek komunikacji miejskiej, Park Wodny, Multikino.
Zapraszam osoby zainteresowane.
Więcej ofert znajdziecie Państwo na naszej stronie internetowej www.ap7.pl
Oferta wysłana z systemu Galactica Virgo
Informacje uzupełniające:
- Wysokość pomieszczeń:2.47 m
- Termin wydania:wolne od
- Termin wydania:2013-06-01
- Ogrzewanie:miejskie
- Głośność:Ciche
- Balkon:duży
- Ilość balkonów:1
- Piwnica:1.93 m²
- Widok:na inne budynki
- Okna - stan:nowe PCV
- Usytuowanie:dwustronne
Polecane ogłoszenia
-
Dom - sprzedam
mazowieckie, Warszawa Ursynów, ----------------------------- Cena: 2600000 -
Dom - sprzedam
mazowieckie, Warszawa Włochy Cena: 1200000 -
Dom - wynajmę
mazowieckie, Warszawa Bemowo Cena: 4500
Szukaj ogłoszeń
Inne ogłoszenia
-
Mieszkanie - sprzedam
małopolskie, Kraków, Dębniki Cena: 304000 -
Lokal - wynajmę
małopolskie, Kraków, Podgórze Duchackie Cena: do uzgodnienia -
Mieszkanie - wynajmę
małopolskie, Kraków, Podgórze Cena: 6990 -
Mieszkanie - wynajmę
małopolskie, Kraków, Stare Miasto Cena: 1999 -
Mieszkanie - sprzedam
małopolskie, Kraków, Podgórze Duchackie Cena: 360000

