Informacje podstawowe:
- Przedmiot oferty: Mieszkanie
- Typ oferty: sprzedam
- Cena: 545000
- Cena za m²: 6181 94
- Powierzchnia: 88.16 m²
- Województwo: małopolskie
- Miejscowość: Kraków
- Ulica / dzielnica: Podgórze Duchackie
- Liczba pokoi: 4
- Liczba pięter: 4
- Piętro: 3
- Rok budowy: 2006
- Standard: 5
- Forma nabycia: umowa sprzedaży
- Ogrzewanie: miejskie
- Dojazd: asfalt
- Położenie: działki zabudowane
- Nr oferty: 335677
Informacje dodatkowe:
- nie
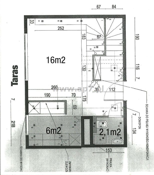
Do sprzedania dwupoziomowe, czteropokojowe mieszkanie o pow. 88,16 znajdujące się na trzecim piętrze w bloku bez windy. dodatkowo do mieszkania przynależy taras (wyjście z jadalni ) oraz balkon (wyjście z salonu na drugim poziomie).
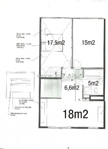
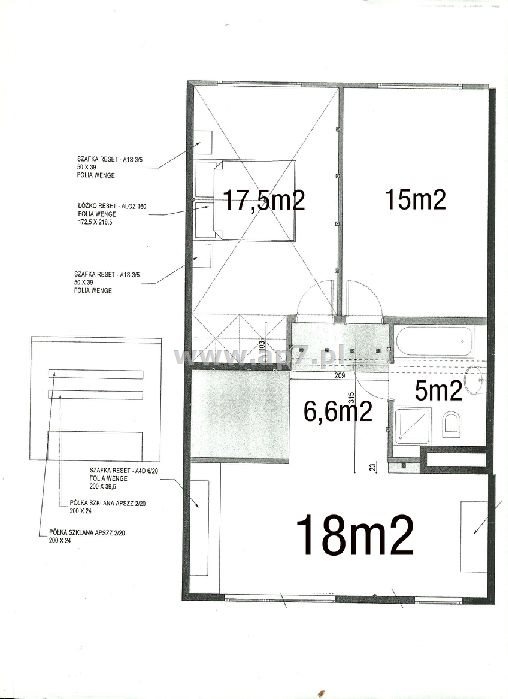
Poziom pierwszy składa się z: przedpokoju z klatką schodową, aneksu kuchennego połączonego z jadalnią oraz WC. Poziom drugi składa się z: przedpokoju z klatką schodową, dwóch sypialni, salonu oraz łazienki z WC.
Istnieje możliwość zabudowania salonu na drugim poziomie zyskując tym samym dodatkową sypialnię.
Na podłogach położone zostały panele, parkiet oraz terakota. Ściany pokryte gładzią gipsową i pomalowane na neutralne kolory.
W cenie mieszkania pozostaje stała zabudowa. Reszta umeblowania do uzgodnienia za dopłatą.
Mieszkanie nie wymaga praktycznie nakładów finansowych. Pozostaje jedynie kwestia odświeżenia ścian.
W okolicy liczne sklepy, markety, przedszkola, szkoły, punkty usługowe, przystanki komunikacji miejskiej.
Istnieje możliwość dokupienia garażu.
zapraszam osoby zainteresowane.
Więcej ofert znajdziecie Państwo na naszej stronie internetowej www.ap7.pl
Oferta wysłana z systemu Galactica Virgo
Informacje uzupełniające:
- Garaż:garaż
- Termin wydania:do uzgodnienia
- Ogrzewanie:miejskie
- Dozór budynku:Ochrona całodobowa
- Głośność:Ciche
- Balkon:mały
- Ilość balkonów:1
- Widok:na inne budynki
- Okna - stan:nowe PCV
Polecane ogłoszenia
-
Dom - sprzedam
mazowieckie, Warszawa Ursynów, ----------------------------- Cena: 2600000 -
Dom - sprzedam
mazowieckie, Warszawa Włochy Cena: 1200000 -
Dom - wynajmę
mazowieckie, Warszawa Bemowo Cena: 4500
Szukaj ogłoszeń
Inne ogłoszenia
-
Mieszkanie - sprzedam
małopolskie, Kraków, Dębniki Cena: 304000 -
Lokal - wynajmę
małopolskie, Kraków, Podgórze Duchackie Cena: do uzgodnienia -
Mieszkanie - wynajmę
małopolskie, Kraków, Podgórze Cena: 6990 -
Mieszkanie - wynajmę
małopolskie, Kraków, Stare Miasto Cena: 1999 -
Mieszkanie - sprzedam
małopolskie, Kraków, Podgórze Duchackie Cena: 360000

