Informacje podstawowe:
- Przedmiot oferty: Mieszkanie
- Typ oferty: sprzedam
- Cena: 579072
- Cena za m²: 8697 39
- Powierzchnia: 66.58 m²
- Województwo: małopolskie
- Miejscowość: Kraków
- Ulica / dzielnica: Stare Miasto
- Liczba pokoi: 2
- Liczba pięter: 6
- Piętro: 3
- Rok budowy: 2013
- Ogrzewanie: miejskie
- Dojazd: asfalt
- Położenie: działki zabudowane
- Nr oferty: 325773
Informacje dodatkowe:
0% PROWIZJI OD KUPUJĄCEGO!!!
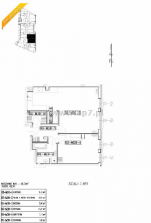
Do sprzedania dwupokojowy apartament o pow. 66,58m2 w apartamentowcu
"Kamienica pod Smokami" przy ul. Pawiej 34. Apartament znajduje się na trzecim piętrze.
Apartament składa się z: przedpokoju, salonu z aneksem kuchennym, spiżarni, sypialni, garderoby oraz łazienki z WC.
Na ścianach i sufitach położony został tynk gipsowy - z wyjątkiem łazienek i WC gdzie położono tynki cementowo-wapienne. We wszystkich pomieszczeniach wylano betonowe wylewki o grubości powyżej 4 cm dozbrojone zbrojeniem rozproszonym. Zamontowano drzwi antywłamaniowe oraz drewniane okna.
Miejsce postojowe w garażu podziemnym jest dodatkowo płatne w wysokości 49 200zł, natomiast dopłata do podwójnego miejsca wynosi 18 450zł.
Termin planowego oddania nieruchomości to przełom VIII/IX 2013r.
W okolicy sklepy, punkty usługowe, galeria, dworzec (PKP i PKS), przystanki komunikacji miejskiej.
Zapraszam osoby zainteresowane.
Więcej ofert znajdziecie Państwo na naszej stronie internetowej www.ap7.pl
Oferta wysłana z systemu Galactica Virgo
Informacje uzupełniające:
- Garaż:miejsce parkingowe
- Ogrzewanie:miejskie
- Dozór budynku:Ochrona całodobowa
- Głośność:Ciche
- Balkon:brak
- Widok:na inne budynki
- Okna - stan:nowe drewniane
- Usytuowanie:jednostronne
Polecane ogłoszenia
-
Dom - sprzedam
mazowieckie, Warszawa Ursynów, ----------------------------- Cena: 2600000 -
Dom - sprzedam
mazowieckie, Warszawa Włochy Cena: 1200000 -
Dom - wynajmę
mazowieckie, Warszawa Bemowo Cena: 4500
Szukaj ogłoszeń
Inne ogłoszenia
-
Mieszkanie - sprzedam
małopolskie, Kraków, Dębniki Cena: 304000 -
Lokal - wynajmę
małopolskie, Kraków, Podgórze Duchackie Cena: do uzgodnienia -
Mieszkanie - wynajmę
małopolskie, Kraków, Podgórze Cena: 6990 -
Mieszkanie - wynajmę
małopolskie, Kraków, Stare Miasto Cena: 1999 -
Mieszkanie - sprzedam
małopolskie, Kraków, Podgórze Duchackie Cena: 360000
