Informacje podstawowe:
- Przedmiot oferty: Mieszkanie
- Typ oferty: sprzedam
- Cena: 345914
- Cena za m²: 5399 00
- Powierzchnia: 64.07 m²
- Województwo: małopolskie
- Miejscowość: Kraków
- Ulica / dzielnica: Wielicka Podgórze
- Liczba pokoi: 3
- Liczba pięter: 5
- Piętro: 1
- Rok budowy: 2013
- Ogrzewanie: miejskie
- Dojazd: asfalt
- Położenie: działki zabudowane
- Nr oferty: 333783
OKAZJA !! NIE POBIERAMY PROWIZJI OD KUPUJĄCEGO!!
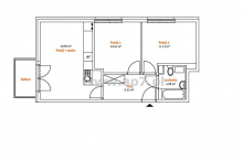
Do sprzedaży proponujemy Państwu mieszkanie 3 pokojowe znajdujące się na I pietrze w 5 piętrowym budynku. Mieszkanie o powierzchni 64.07m2 składa się z pokoju dziennego połączonego z aneksem kuchennym z wyjściem na duży balkon, 2 sypialni, łazienki z WC oraz holu.
W budynku znajdują się 2 windy.
Obiekt wyposażony w instalacje wewnętrzne: wody, kanalizacji, C.O., instalację elektryczną. Ponadto każde mieszkanie posiada doprowadzoną instalację internetową oraz telewizji kablowej. Budynek bez instalacji gazowej. Ciepła woda oraz ogrzewanie z MPEC-u. W budynku dwie nowoczesne windy. Przewidywany termin oddania mieszkań II/III kwartał 2013r.
Inwestycja to nowoczesny kompleks dwóch budynków wielorodzinnych, w których znajdzie się 140 starannie zaprojektowanych mieszkań o zróżnicowanej liczbie pomieszczeń i metrażu - od 35 do 101 m2. Wszystkie mieszkania wyposażone zostały w balkony, a w lokalach zlokalizowanych na parterze przewidziano przydomowe ogródki do samodzielnej aranżacji i zagospodarowania. Ścieżki spacerowe, place zabaw dla dzieci, zieleńce - zaprojektowane zostały tak, aby każdemu mieszkało się tutaj bezpiecznie i komfortowo.
Budynki przy Wielickiej posiadają od IV do VI pięter. Każdy z nich wyposażony jest w wielostanowiskowy garaż podziemny, dla lokatorów i ich gości przewidziano również miejsca postojowe naziemne.
Na parterze budynku zaprojektowano przestrzeń dla lokali handlowo - usługowych o przeznaczeniu biurowym, medycznym lub bankowym.
Położenie kompleksu mieszkaniowego to niewątpliwie jego ogromny atut. Budynki umiejscowione będą na Podgórzu - pięknej i modnej dzielnicy Krakowa. Dogodny transport do ul. Wielickiej gwarantuje rozbudowana sieć komunikacji miejskiej, zarówno tramwajowej, jak i autobusowej. Rozbudowana sieć drogowa w tym rejonie pozwala zmotoryzowanym dotrzeć zarówno do centrum jak i południowej obwodnicy i tras wylotowych z miasta.
Lokalizacja inwestycji charakteryzuje się dobrą dostępnością komunikacyjną - to tylko 3 km od Rynku Głównego. Na wyjątkowość lokalizacji składa się również bliskość najbardziej malowniczych zielonych terenów Krakowa: Rezerwatu Przyrody Nieożywionej Bonarka, zalewu Bagry, Kopca Krakusa oraz Parku Bednarskiego w starej części Podgórza.
W naszej ofercie dostępne są również mieszkania 3 pokojowe:
Piętro
Pokoje
Pow.
Cena brutto m²
Cena brutto
5 piętro
3
70,40 m²
5499.00 zł
387129 zł
1 piętro
3
63,29 m²
5599.00 zł
354360 zł
2 piętro
3
63,16 m²
5699.00 zł
359948 zł
3 piętro
3
51,94 m²
5799.00 zł
301200 zł
3 piętro
3
62,95 m²
5899.00 zł
371342 zł
POLECAMY!!
Oferta wysłana z systemu Galactica Virgo
Informacje uzupełniające:
- Wysokość pomieszczeń:2.50 m
- Termin wydania:tak jak w opisie
- Ogrzewanie:miejskie
- Głośność:Ciche
- Rozkład:dwustronne rozkładowe
- Widok:na inne budynki
- Okna - stan:nowe PCV
- Usytuowanie:dwustronne
Polecane ogłoszenia
-
Dom - sprzedam
mazowieckie, Warszawa Ursynów, ----------------------------- Cena: 2600000 -
Dom - sprzedam
mazowieckie, Warszawa Włochy Cena: 1200000 -
Dom - wynajmę
mazowieckie, Warszawa Bemowo Cena: 4500
Szukaj ogłoszeń
Inne ogłoszenia
-
Mieszkanie - sprzedam
małopolskie, Kraków, Dębniki Cena: 304000 -
Lokal - wynajmę
małopolskie, Kraków, Podgórze Duchackie Cena: do uzgodnienia -
Mieszkanie - wynajmę
małopolskie, Kraków, Podgórze Cena: 6990 -
Mieszkanie - wynajmę
małopolskie, Kraków, Stare Miasto Cena: 1999 -
Mieszkanie - sprzedam
małopolskie, Kraków, Podgórze Duchackie Cena: 360000

