Informacje podstawowe:
- Przedmiot oferty: Mieszkanie
- Typ oferty: sprzedam
- Cena: 381156
- Cena za m²: 6900 00
- Powierzchnia: 55.24 m²
- Województwo: małopolskie
- Miejscowość: Kraków
- Ulica / dzielnica: Wieniawskiego Prądnik Czerwony
- Liczba pokoi: 2
- Liczba pięter: 3
- Piętro: 1
- Rok budowy: 2013
- Standard: 5
- Dojazd: asfalt
- Położenie: działki zabudowane
- Nr oferty: 384439
Informacje dodatkowe:
0% PROWIZJI OD KUPUJĄCEGO !!!
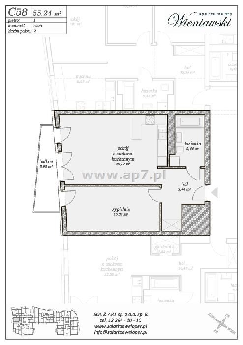
Do sprzedania mieszkanie o pow. 55,24 m 2 przy ul. Wieniawskiego w Krakowie.
Mieszkanie jest w stanie deweloperskim, znajduje się na I piętrze w III piętrowym apartamentowcu znajdującym się na terenie nowego kompleksu niedaleko ulicy Pilotów.
Inwestycja składa się z trzech eleganckich budynków wykończonych z materiałów najwyższej jakości.
Mieszkanie składa się z salonu połączonego z aneksem kuchennym (26,42 m 2 ), sypialni (15,35 m 2 ), łazienki (5,83 m 2 ), holu (7,64 m 2 ) oraz balkonu (5,93 m 2 ).
Wysoki standard wykończenia. Ekspozycja zachodnia. Budynek wyposażony w dwie cichobieżne windy.
Istnieje możliwość nabycia miejsca postojowego w garażu podziemnym (30 000 PLN).
Atrakcyjna lokalizacja, cicha i spokojna okolica, dobra komunikacja z centrum Krakowa. W pobliżu wiele lokali usługowo - handlowych w tym hipermarket Alma, CH Krokus, Multikino i Aqua Park.
Termin zakończenie inwestycji - grudzień 2013.
Zapraszam osoby zainteresowane.
Więcej ofert znajdziecie Państwo na naszej stronie internetowej www.ap7.pl
Oferta wysłana z systemu Galactica Virgo
Informacje uzupełniające:
- Garaż:garaż
- Termin wydania:tak jak w opisie
- Głośność:Ciche
- Balkon:duży
- Ilość balkonów:1
- Widok:na inne budynki
- Okna - stan:nowe drewniane
- Usytuowanie:jednostronne
Polecane ogłoszenia
-
Dom - sprzedam
mazowieckie, Warszawa Ursynów, ----------------------------- Cena: 2600000 -
Dom - sprzedam
mazowieckie, Warszawa Włochy Cena: 1200000 -
Dom - wynajmę
mazowieckie, Warszawa Bemowo Cena: 4500
Szukaj ogłoszeń
Inne ogłoszenia
-
Mieszkanie - sprzedam
małopolskie, Kraków, Dębniki Cena: 304000 -
Lokal - wynajmę
małopolskie, Kraków, Podgórze Duchackie Cena: do uzgodnienia -
Mieszkanie - wynajmę
małopolskie, Kraków, Podgórze Cena: 6990 -
Mieszkanie - wynajmę
małopolskie, Kraków, Stare Miasto Cena: 1999 -
Mieszkanie - sprzedam
małopolskie, Kraków, Podgórze Duchackie Cena: 360000

